Skip to main content
Montego Property management
Montego Property management
Home
Amenities
Available Properties
Maintenance
Contact Us
Evergreen
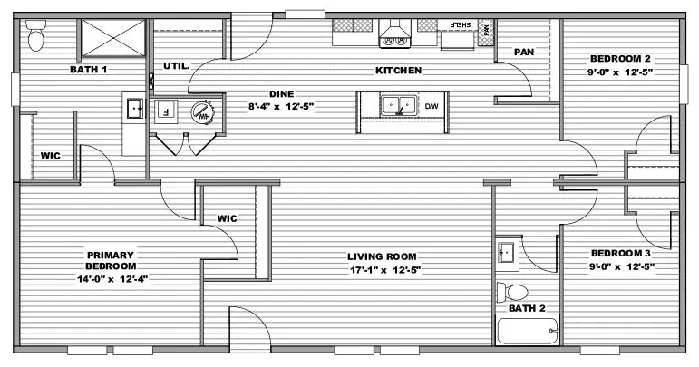
1370 square feet, 3 bed 2 bath, newly constructed 2025 model "GLIMPSE.". For virtual tour and rendered images please see:
https://claytonmiyo.com/models/46myo28523ah/
Leasing Rates
6 Months
- $2250
12 Months
- $2050
18 Months
- $1850
Schedule a Tour
Apply Now